Vente appartement à ONDRES (40440)

Référence : 32855


516 420

ONDRES

140 m²

4 pièces

Description du bien

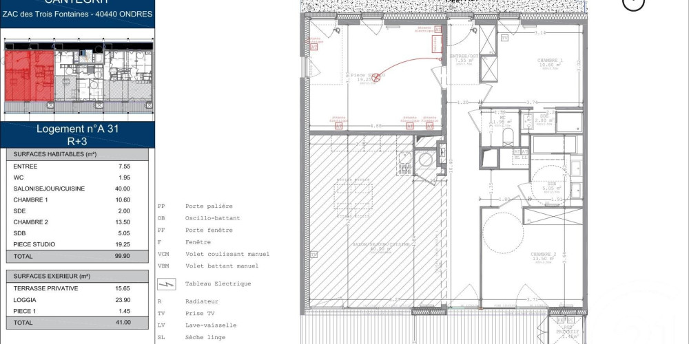
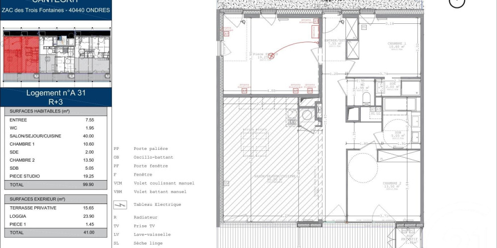
ONDRES aux portes du BAB (Bayonne, Anglet, Biarritz), venez découvrir cet appartement situé au troisième et dernier étage d'une résidence intimiste répondant aux dernières normes RE 2025.br/>br/>D'une superficie d'environ 99 m², il offre un séjour lumineux avec cuisine ouverte, trois chambres dont une avec salle d'eau, une salle de bains ainsi qu'un WC indépendant.br/>br/>Vous profiterez d'une terrasse d'environ 15m² exposée nord, d'une loggia d'environ 23 m² exposée sud, offrant une vue dégagée sur la forêt avec en complément un espace de rangement. br/>br/>Deux places de parking dans le parking semi-enterré accessible par ascenseur viennent compléter ce bien.br/>br/>Idéalement situé, à seulement 5 km des plages, cet appartement bénéficie d'un environnement calme et verdoyant tout en restant proche de toutes les commodités.br/>br/>A visiter sans tarder ! Prix : 516420.0 euros, Honoraires charge vendeur. Copropriété :br/> Nb de lots : 27 br/> Budget prévisionnel (dépenses courantes) : 1.0 euros/an

Détails du bien

  • Mandat : simple
  • Code postal : 40440
  • Commune : ONDRES
  • Surface habitable : 140 m2
  • Nombre de pièces : 4
  • Nombre de chambres : 3
  • Nombre de salle de bain : 1
  • Nombre de parking : 2
  • Eau chaude : Alimentation en eau chaude non communiquee
  • Meublé : non

Nous contacter

CES BIENS PEUVENT VOUS INTÉRESSER