Vente maison à MESSANGES (40660)

Référence : 1936


299 000

MESSANGES

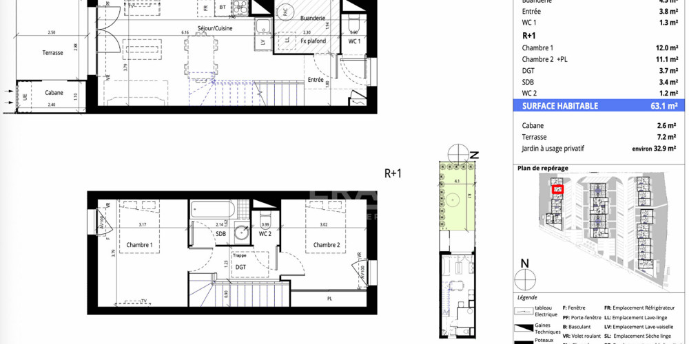
63 m²

3 pièces

Description du bien

Idéalement situé à Messanges dans un charmant village, cette maison de 61 m² offre un cadre de vie unique où tout se fait à pied : commerces, école, marché, etc.Vous serez séduit par un séjour lumineux avec cuisine ouverte, pensé comme un véritable espace de vie convivial, parfait pour des moments partagés.Deux grandes chambres accueillent confortablement famille ou invités. L'ensemble s'ouvre sur une terrasse et un jardin, idéal pour profiter du soleil landais et prolonger les belles journées en extérieur.Cette adresse conjugue confort moderne et charme local.Côté pratique, vous disposerez de places de stationnement et d'un local vélo. Venez découvrir cette belle opportunité ! Frais de notaire réduits. Les informations sur les risques auxquels ce bien est exposé sont disponibles sur le site Géorisques : www.georisques.gouv.fr

Détails du bien

  • Mandat : simple
  • Code postal : 40660
  • Commune : MESSANGES
  • Surface habitable : 63 m2
  • Nombre de pièces : 3
  • Nombre de chambres : 2
  • Nombre de salle de bain : 1
  • Nombre de parking : 2
  • Chauffage : Air pulsé
  • Meublé : non

Ce bien est proposé par

ERA CAP LANDES

Nous contacter

CES BIENS PEUVENT VOUS INTÉRESSER