Vente appartement à ONDRES (40440)

Référence : 32785


449 000

ONDRES

119 m²

4 pièces

Description du bien

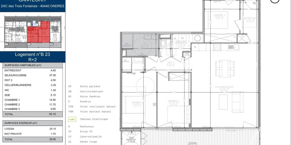
ONDRES aux portes du BAB (Bayonne, Anglet, Biarritz), venez découvrir cet appartement situé au deuxième étage d'une résidence intimiste répondant aux dernières normes RE 2025.br/>br/>D'une superficie d'environ 92 m², il offre un séjour lumineux avec cuisine ouverte, un cellier, trois chambres dont une avec salle d'eau, une salle de bains ainsi qu'un WC indépendant.br/>br/>Vous profiterez d'une loggia d'environ 25 m² exposée sud, offrant une vue dégagée sur la forêt avec en complément un espace de rangement. br/>br/>Deux places de parking dans le parking semi-enterré accessible par ascenseur viennent compléter ce bien.br/>br/>Idéalement situé, à seulement 5 km des plages, cet appartement bénéficie d'un environnement calme et verdoyant tout en restant proche de toutes les commodités.br/>br/>A visiter sans tarder ! Prix : 449000.0 euros, Honoraires charge vendeur. Copropriété :br/> Nb de lots : 27 br/> Budget prévisionnel (dépenses courantes) : 1.0 euros/an

Détails du bien

  • Mandat : simple
  • Code postal : 40440
  • Commune : ONDRES
  • Surface habitable : 119 m2
  • Nombre de pièces : 4
  • Nombre de chambres : 3
  • Nombre de salle de bain : 1
  • Nombre de parking : 2
  • Eau chaude : Alimentation en eau chaude non communiquee
  • Meublé : non

Nous contacter

CES BIENS PEUVENT VOUS INTÉRESSER