Vente maison à ST MARTIN DE SEIGNANX (40390)

Référence : VM1232-OCEANES


406 250

ST MARTIN DE SEIGNANX

84 m²

4 pièces

Description du bien

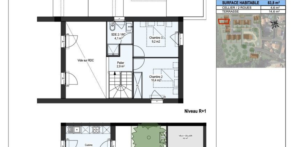
SAINT-MARTIN-DE-SEIGNANX, maison neuve, livraison fin 2025, frais de notaires réduits ! Toutes les commodités à pieds !Bâtie sur un terrain de presque 300 m2, emplacement idéal pour cette maison en duplex située au quartier neuf, dans un lotissement calme, comprenant pièces de vie au rez-de-chaussée, une chambre et une salle d'eau et WC indépendants, et à l'étage 2 chambres, une salle d'eau avec WC, avec local cellier d'environ 5 m2 à l'extérieur.Une terrasse de presque 15 m2 orientée ouest permet de profiter des extérieurs !D'autres maisons disponibles notamment des 4 chambres en maisons individuelles !Vous pouvez nous contacter au 05 59 52 42 42 pour plus de renseignements !Honoraires à la charge du vendeur. Non soumis au DPE. Les informations sur les risques auxquels ce bien est exposé sont disponibles sur le site Géorisques : georisques.gouv.fr.

Détails du bien

  • Mandat : simple
  • Code postal : 40390
  • Commune : ST MARTIN DE SEIGNANX
  • Surface habitable : 84 m2
  • Nombre de pièces : 4
  • Nombre de chambres : 3
  • Meublé : non

Ce bien est proposé par

PIERRES OCEANES IMMOBILIER

PIERRES OCEANES IMMOBILIER

2328, Avenue du Quartier Neuf
40390 ST MARTIN DE SEIGNANX

05 59 52 42 42
transaction@pierresoceanesimmobilier.fr

Nous contacter

CES BIENS PEUVENT VOUS INTÉRESSER